Pilisvörösvár - Eladó Ház
179 m2
214.000.000 Ft
1836
Leírás
Újépítésű, földszintes önálló családi ház, Pilisvörösvár kedvelt részén, csodaszép természeti környezetben, csendes, átmenő forgalomtól mentes zsákutcában eladó!
A beruházás elkezdődött, tervezett átadás 2026. augusztus, az őszt már új otthonában töltheti!
A beruházó megbecsült szakember a térségben, rengeteg referenciával.
A telek sík, 715m2, a vételár tartalmazza a telek utcafronti kerítését, az udvar térköves burkolatát (járdák, terasz, gépkocsi beálló) és egy alapparkosítást (durva tereprendezés, füvesítés).
A ház belső tereinek színvilága, meleg és hidegburkolatainak kiválasztása, a belső ajtók kiválasztása, a fürdőszobák megálmodása az ön igényei szerint történhet, amennyiben minél hamarabb dönt, az ingatlan megvásárlása mellett.
Az épületen belül a villanyszerelés úgy került kiépítésre, hogy igény szerint a napelem a tető szerkezetéről fogadható legyen, az épületen belül nem igényel munkálatokat az esetleges bekötés.
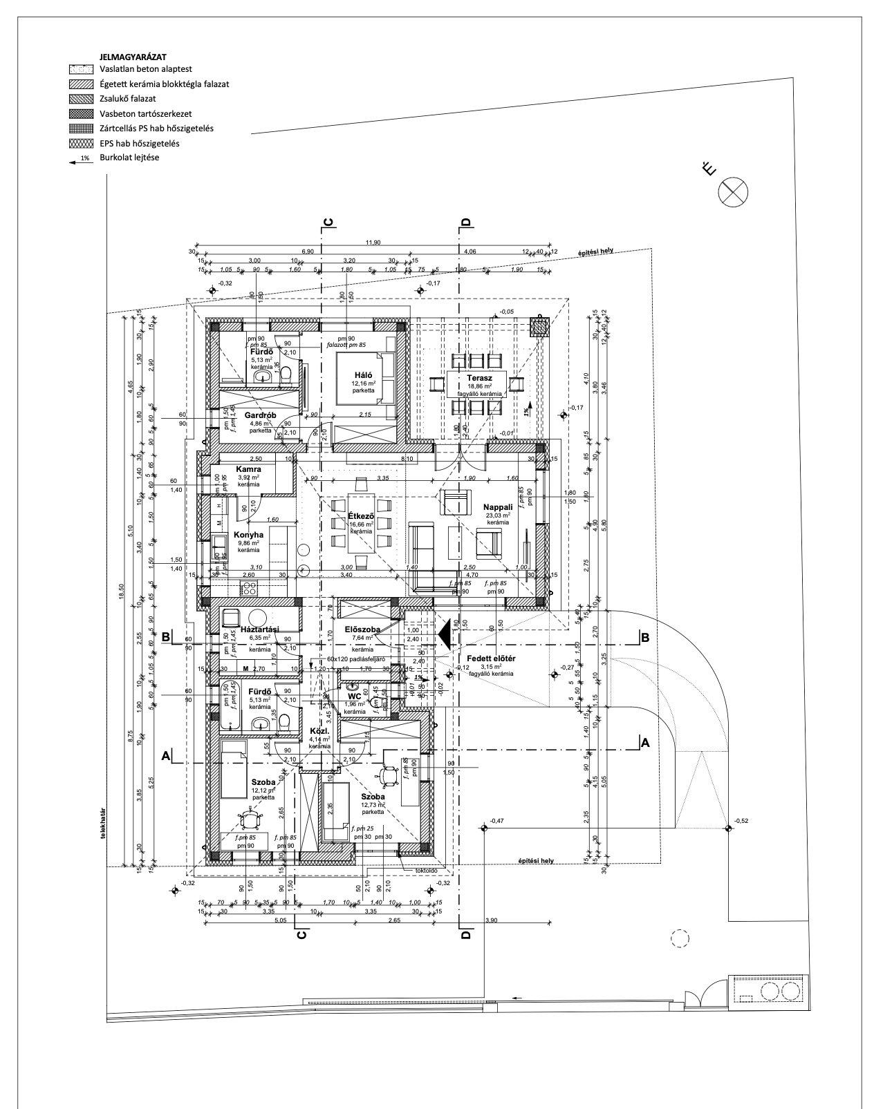
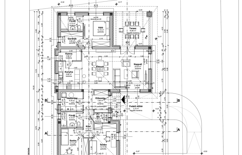
HELYISÉGLISTA:
Földszint:
Előszoba kerámia 7,64 m2
Közlekedő kerámia 4,14 m2
WC kerámia 1,96 m2
Szoba szalagparketta 12,73 m2
Szoba szalagparketta 12,12 m2
Fürdő kerámia 5,13 m2
Háztartási helyiség kerámia 6,35 m2
Konyha kerámia 9,86 m2
Kamra kerámia 3,92 m2
Étkező kerámia 16,66 m2
Nappali szalagparketta 23,03 m2
Háló kerámia 12,16 m2
Fürdő kerámia 5,13 m2
Gardrób szalagparketta 4,86 m2
Összesen - 125,69 m2
Fedett előtér fagyálló kerámia 3,15 m2
Terasz fagyálló kerámia 18,86 m2
Műszaki tartalom:
1. Földmunka és szigetelés
Az épület alapozása vasalt sávalap. Az alaptestek kialakításáról és minimális
szélességéről az alapozási terv rendelkezik. Az alaptestek összefogására vasalt talpkoszorú és hálósan vasalt 15 cm aljzat készült, mely alá 5 cm vastag szerelőbeton és 20 cm vastag, Try=90% relatív tömörségű homokos kavicsréteg került.
Talajnedvesség elleni szigetelés készült 1 réteg modifikált bitumenes vastaglemezből, kellősítéssel, típusnak megfelelően toldva és ragasztva. A lábazatszigetelést a csatlakozó terepsík fölé minimum 30 cm magasságig vezetjük fel.
2. Tetőszerkezet
A fedélszék hagyományos szarufás ácsszerkezet, csavarozott mérnök jellegű kapcsolatokkal a tartószerkezeti műszaki leírásnak megfelelően. Az újonnan beépített fa szerkezeteket gomba és lángmentesítő szerrel kezelték le.
A látszó faszerkezetek gyalult, csiszolt kivitelben készültek, natúr pácolással. A tető héjalása barna színű, hullámos, beton tetőcserép. A lakótér hőszigetelését a vasbeton födémre helyezett 15+10 cm lépésálló polisztirol hab hőszigetelés biztosítja. Csapadékvíz elvezetése alumínium csüngőeresz kialakítással, kör keresztmetszetű lefolyó ereszcsatornákkal történt.
3. Nyílászárók
A tervezett nyílászárók műanyag szerkezetek és háromrétegű hőszigetelő üvegezéssel készülnek. A beépítési hézagok hőszigeteléssel vannak kitöltve, valamint külső oldalról vízzáró, belső oldalról lég- és párazáró membránozással vannak ellátva. Az ablakszerkezetek vízvetői műanyagból, a belső ablakkönyöklők és a külső ablakpárkányok mészkőből készülnek.
4. Burkolatok
A belső falfelületek mészhabarccsal simára vakoltak, és fehérre festettek. A vizes
helyiségek 2,10 m magasságig csempézettek, a konyhában 3 sor (60 cm) csempe készül. A padlóburkolatok hőszigetelt aljzattal készülnek. A hálószobák padlóburkolata szalagparketta, a többi helyiségben kerámia lapburkolat készül. A kerti utak és a gépkocsibeálló beton térkővel, a fedett terasz és a fedett előtér pedig fagyálló kerámiával burkoltak.
5. Hőszigetelések
Az épület homlokzati falaira lábazat felett 15 cm vastag grafit reflex homlokzati hőszigetelés, a lábazati falakra pedig 15 cm vastag XPS vagy formahabosított PS hab hőszigetelés kerül.
A talajon fekvő padlók esetében a szerkezetbe 10+2 cm lépésálló EPS hab hőszigetelés kerül.
A földszint feletti födém tetejére 10+15 cm EPS hab hőszigetelés kerül elhelyezésre.
Különös gondot kell fordítani a hőhidak kialakulásának megelőzésére, ezért a homlokzati vasbeton szerkezetek elé 5 cm kiegészítő hőszigetelést építettünk be, a homlokzati nyílászárók bélletébe pedig a homlokzati hőszigetelést 5 cm vastagságban fordítjuk be.
Részletesebb műszaki leírást, valamint a beépítésre kerülő anyagok listáját (márkanevekkel)
elvárt fizetési ütemezést, megtekintéskor biztosítunk kedves ügyfeleink részére.
További információkért forduljon hozzám bizalommal:
Szőnyiingatlan.com
2085 Pilisvörösvár, Szabadság utca 14
Szőnyi Szilvia
Kapcsolat
Üzenetküldés
Hasonló ingatlanok
Pilisvörösvár
Egyszintes, jó minőségű ikerház, kellemes környezet!
Pilisvörösvár frekventált részén, a Szentiváni-hegyen ela...
Újépítésű
Pilisvörösvár
Már leköthetők!
Megfizethető árú új építésű ikerház felek, Pilisvörösvár központi részén 2026 év végi átadássa...
Pilisvörösvár
Már leköthetők!
Megfizethető árú új építésű ikerház felek, Pilisvörösvár központi részén 2026 év végi átadáss...


